螺旋輸送機生產廠家 不挑物料,不挑場景,可非標定制
發布時間:2022-11-23 14:37:51 作 者:大漢機械 原創文章:http://www.jncyjx.cn/news/657.html
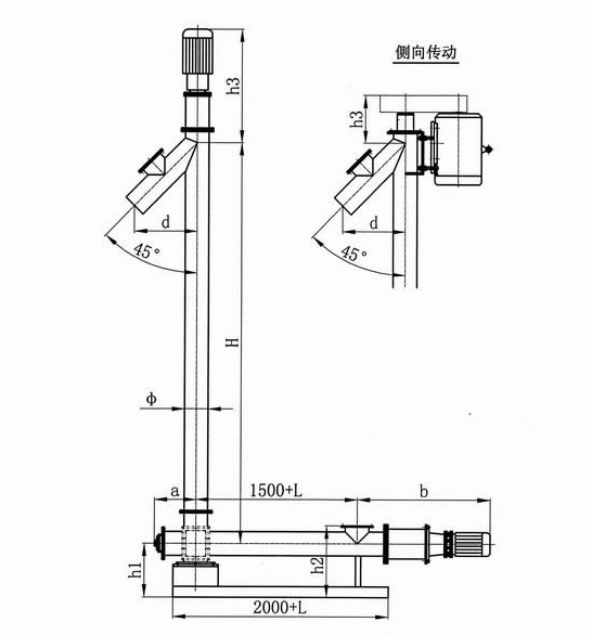
垂直螺旋輸送機也叫立式螺旋輸送機,可以垂直方向上提升各種散裝物料,利用電機通過減速機帶動螺旋旋轉,通過旋轉將物料輸送到預定位置。本文將為您詳細講解垂直螺旋輸送機。
物料隨螺旋高速旋轉,被輸送的物料從水平部分的進料口加入,通過旋轉的水平進料螺桿送入輸送機和垂直部分,然后將物料向上推至出料口出料口由垂直螺桿,物料隨螺桿高速旋轉,被輸送的物料從水平部分的進料口加入,通過旋轉的水平進料螺桿進入輸送機,然后用垂直螺旋將物料推到出料口排出。
垂直螺旋輸送機由水平螺旋輸送和垂直螺旋輸送組成。
垂直螺旋輸送機的進料必須保持必要的進料力。當進料高度差較小時,垂直螺旋輸送機裝有水平進料螺旋。一般水平進料螺旋和垂直輸送螺旋做成一個整體。水平進料螺旋的直徑與垂直進料螺旋的直徑相同,水平進料螺旋的轉速低于垂直進料螺旋的轉速。
1、用于將粉狀或顆粒狀物料從低處輸送到高處,無需使用內部軸承即可將散狀物料提升至8米。
2、完全封閉在管道內,不會損失任何物質,滿足防塵要求。
3、大部分物料通過直線或偏置水平進料輸送機送至垂直輸送機,輸送物料更順暢,不易堵料返料。
4、在所有垂??直輸送系統中占地面積最小。
垂直螺旋輸送機用于空間有限但必須提升物料的情況。它對輸送大多數粉狀和顆粒狀物料非常有效,但由于提升高度的影響,有些物料難免會下滑,使得它們對被輸送物料的狀態有要求,一般來說,垂直螺旋輸送機適合輸送以下物料:
1、顆粒、粉末
2、非黏性的容重≤1.3t/m的干燥物料
3、密度從1010PCF到50PCF(中等密度)
4、干燥至含水量低的物料
5、不易腐爛
具體物料:糧食、飼料、水泥、化工原料、面粉、糖、石灰等。
可將產品提升到填充料斗或筒倉所需的高度,垂直輸送高度可達8米
螺旋輸送機
斗式提升機
皮帶輸送機
其他輸送機
新鄉大漢機械有限公司
聯系人:李經理
電話:0373-2682 333
手機號:15836198876(同微信)
郵箱:cndahan@163.com
在線咨詢
廠址:延津縣森林公園大門西1000米路北